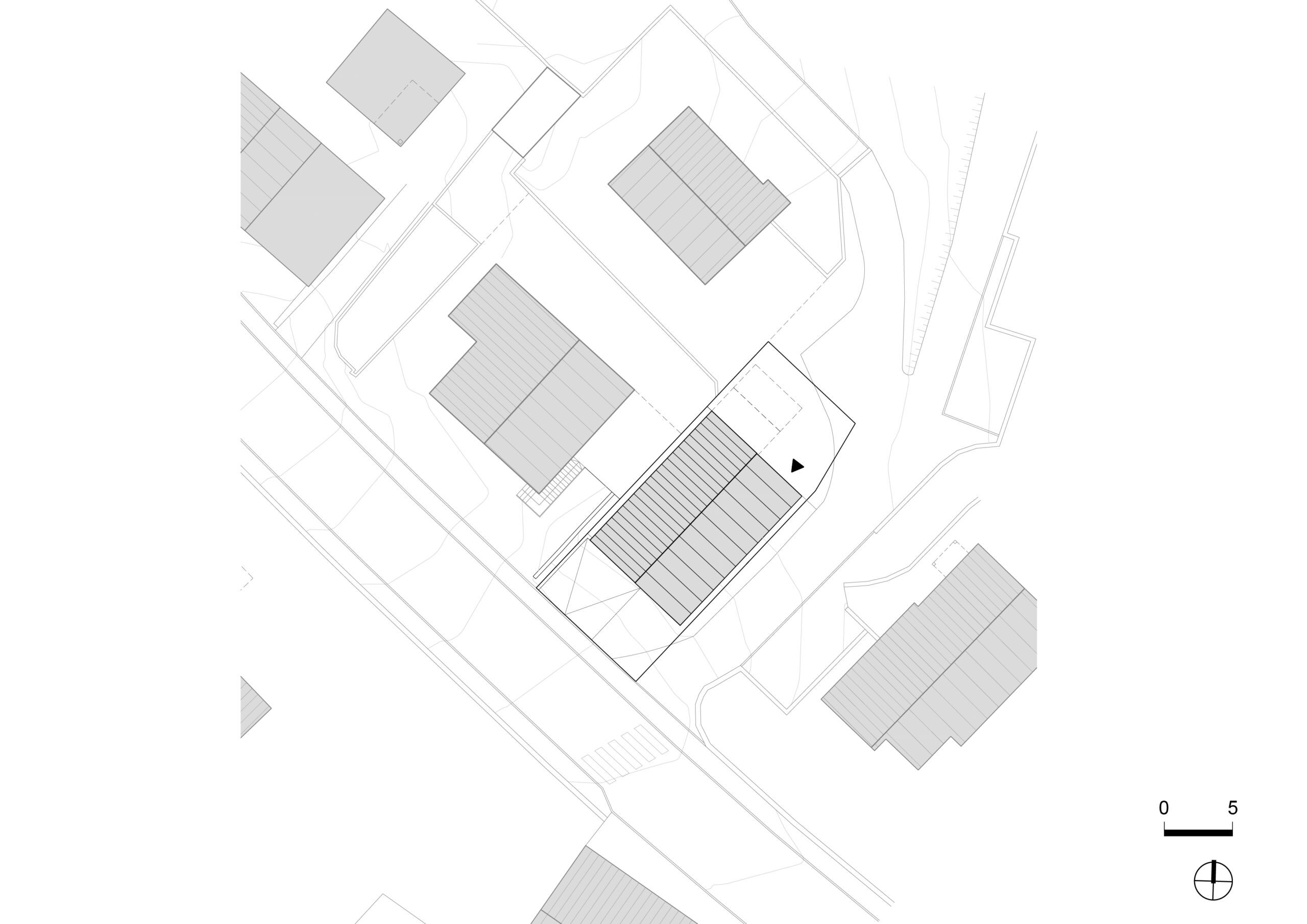
Forststation Deutschnofen
Ort
Deutschnofen
Bauherr
Autonome Provinz Bozen
Planung
Roland Baldi Architects
Team
Roland Baldi
Carlo Scolari
Fertigstellung
2026
Foto
Oskar Da Riz
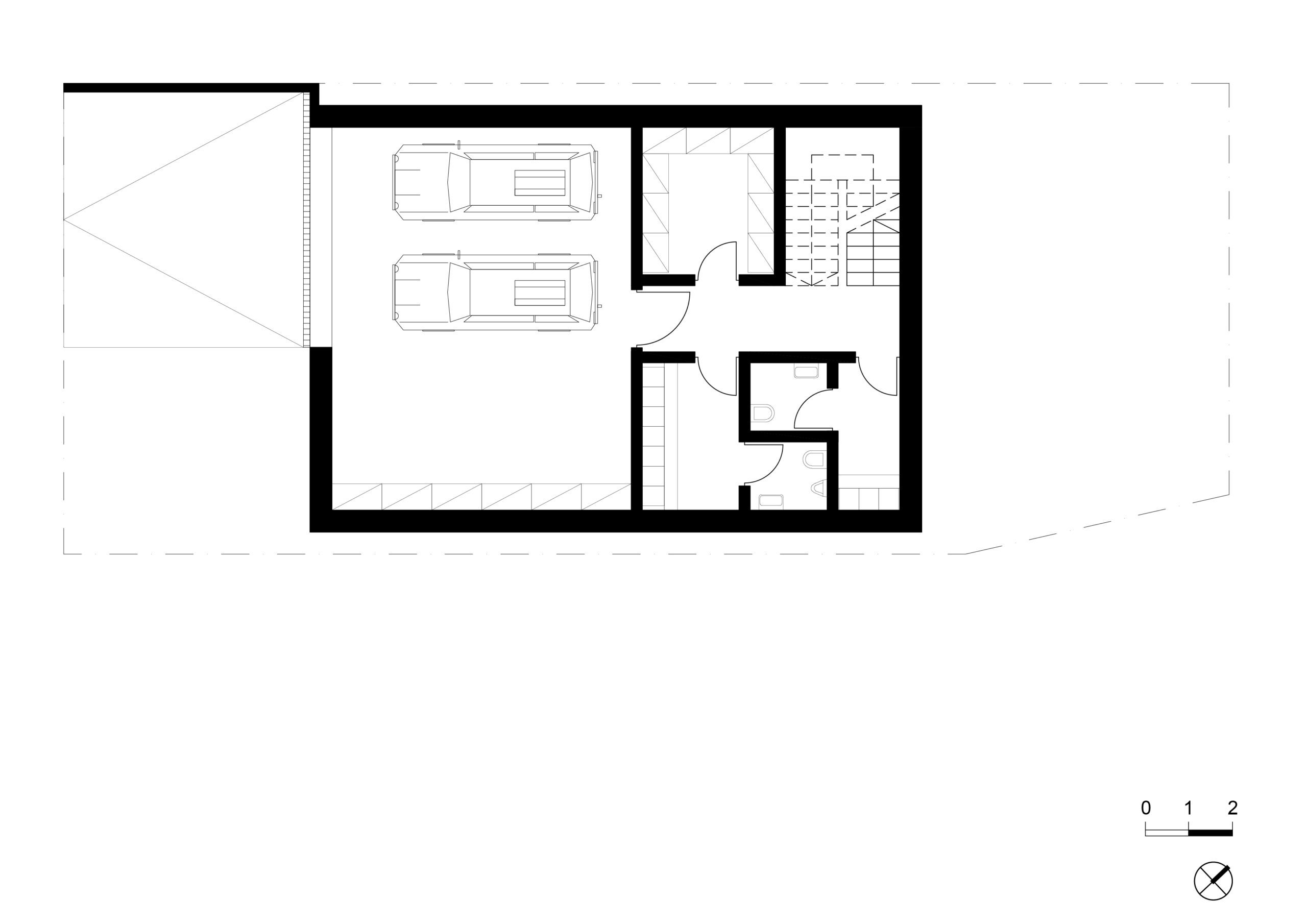
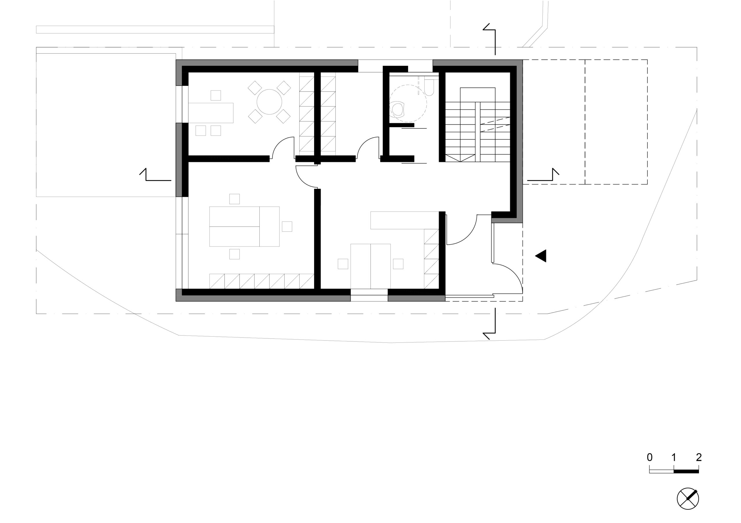
Holz als Haltung: Die Forststation im Zentrum von Deutschnofen wurde als kompakter Holzbau für die lokale Forstbehörde der Südtiroler Landesverwaltung realisiert, und versteht sich als Ausdruck eines verantwortungsvollen Umgangs mit Ressourcen. Der Baukörper orientiert sich an den ortstypischen zweigeschossigen Wohnhäusern mit Satteldach, reduziert deren Typologie auf das Wesentliche und tritt in einen zeitgenössischen Dialog mit dem Bestand. Die Doppelfunktion des Baus als interne Verwaltung und öffentliche Anlaufstelle ist klar organisiert: Nebenräume liegen im Untergeschoss, öffentliche Bereiche im Erdgeschoss, ein Besprechungsraum im Obergeschoss dient bei Bedarf als Notfallzentrale. Tragwerk, Wände und Decken bestehen aus Brettsperrholzplatten (XLAM). Die schwarz lasierte Holzfassade interpretiert überlieferte Holzschutztechniken, bei denen erdberührende Bauteile angeflammt wurden, um sie vor Feuchtigkeit und Fäulnis zu schützen. Davon inspiriert erscheint der Baukörper sinnbildlich wie in den Boden gerammt und übersetzt überlieferte Baukultur in die Zukunft.
